Mieszkanie na sprzedaż Bydgoszcz, Fordon

2 pokoje
38.86 m²
11 513,64 zł/m2
parter
IDE-MS-13554
Oblicz ratę kredytu

447 420 zł

Mieszkanie na sprzedaż

Szczegóły oferty

Symbol oferty IDE-MS-13554
Powierzchnia 38,86 m²
Powierzchnia użytkowa [m2] 38,86 m²
Liczba pokoi 2
Rodzaj budynku nowe budownictwo
Standard
Opłaty wg liczników prąd
Piętro parter
Liczba pięter w budynku 3
Garaż garaż
Stan lokalu deweloperski
Okna PCV 3 szyby, ciepły montaż
Instalacje nowe
Balkon duży
Liczba balkonów 1
Rok budowy 2024
Widok woda
Woda jest
Dojazd ASFALTOWA
Otoczenie park
Ogrzewanie C.O. GAZOWE
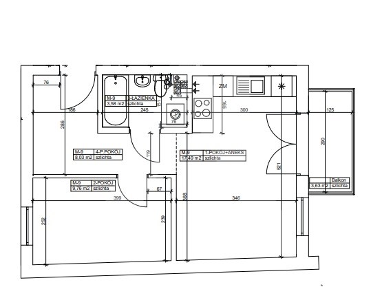
Pomieszczenia
Powierzchnia pokoi 17,49/ 9,76 m2
Podłogi pokoi panele podłogowe
Typ kuchni aneks kuchenny połączony z jadalnią i salonem
Rodzaj kuchni aneks kuchenny
Podłoga kuchni panele podłogowe
Typ łazienki razem z wc
Powierzchnia łazienki [m2] 3,58 m2
Glazura łazienki nowego typu
Liczba przedpokoi 1
Powierzchnia przedpokoi 8,03 m2
Podłoga przedpokoi panele podłogowe
Joanna Baranek - Delińska

Joanna Baranek - Delińska

DORADCA DS. RYNKU NIERUCHOMOŚCI

Napisz wiadomość 62 Ofert

Opis nieruchomości

IDEA NIERUCHOMOŚCI PRZEDSTWAIA MIESZKANIE WYKONANE POD KLUCZ
Super oferta dla Ciebie.

Zapraszam!!!

MIESZKANIE:
Na sprzedaż komfortowe, 2-pokojowe mieszkanie o powierzchni 38,86 mkw, położone w nowym budynku z 2024 roku, na idealnym parterzew sercu Starego Fordonu – tuż obok odnowionego rynku i urokliwych bulwarów Wiślanych.

OPIS OFERTY:
Mieszkanie zostało wykończone pod klucz z dużą dbałością o detale, w stylu łączącym funkcjonalność z nowoczesną estetyką.
Przyjemny salon z aneksem kuchennym z bezpośrednim wyjściem na balkon.
Niezależne sypialnia, łazienka z WC oraz  ustawny przedpokój.
Piękne wykończenie, dbałość o detale.
Fantastyczne oświetlenie, piękne tapety z delikatnym motywem roślinnym nadają wnętrzu swoistego charaktery, idealnie skomponowane podłogi.

UKŁAD POMIESZCZEŃ:
– salon z aneksem kuchennym: 17,49 mkw
– sypialnia :9,76 mkw
– łazienka z WC: 3,58 mke
– przedpokój: 8,03 mke
- balkon: 3,63 mkw

STANDARD WYKOŃCZENIA:
Mieszkanie wykończone z gustem i pomysłem, gotowe do zamieszkania bez dodatkowych nakładów finansowych.
Wysokiej jakości materiały, pozostaje tylko przyjemność urządzania się.

BUDYNEK:
Nowoczesna, kameralna zabudowa z 2024 roku o ciekawej, charakterystycznej bryle, zabudowa pierzeja.
Budynek 3-kondygnacyjny, wkomponowany w zabytkową tkankę Starego Fordonu, tworzy spójną całość z historycznym otoczeniem.

LOKALIZACJA:
Stary Fordon – dzielnica w trakcie dynamicznej rewitalizacji.
W bezpośrednim sąsiedztwie odnowiony rynek,  ścieżki spacerowe oraz malownicze bulwary Wiślane.
Miejsce idealne dla osób ceniących spokój, przyrodę i łatwy dostęp do infrastruktury miejskiej.

ZARZĄDCA/OPŁATY:
Wspólnota Mieszkania.

DODATKOWE INFORMACJE:
Oferta idealna zarówno do zamieszkania, jak i jako inwestycja pod wynajem.
Możliwość szybkiego wydania lokalu.

Przyjdź, zobacz, pokochaj, zamieszkaj.
Dodatkowo możliwość zakupu garażu.
Cena garażu: 68 tyś zł.

Zapraszam na prezentację.
Joanna Baranek-Delińska
tel. 517-575-653

Opiekun oferty:
Joanna Baranek-Delińska
tel. 517-575-653

Wirtualny spacer

Lokalizacja nieruchomości

Kalkulatory

Kalkulator kredytowy

Wysokość raty

PLN
%

Kalkulator kosztów

Podatek od czynności cywilno-prawnych

Taksa notarialna
(opłata notarialna)

Wniosek o wpis do WKW

VAT od prowizji
agencji nieruchomości

Vat od taksy notarialnej
(opłaty notarialnej)

Prowizja agencji nieruchomości

Wypisy aktu notarialnego

Razem

Uwaga: mogą wystąpić dodatkowe opłaty za założenie księgi wieczystej oraz ustanowienie hipoteki.

PLN
PLN
PLN
PLN
PLN
PLN
%
PLN

Podobne oferty

Mieszkanie na sprzedaż

Bydgoszcz, Fordon

3 pokoje 46 m2 10 122,73 zł/m2

Mieszkanie na sprzedaż

Bydgoszcz, Fordon

2 pokoje 32 m2 10 295,13 zł/m2

Mieszkanie na sprzedaż

Bydgoszcz, Fordon

3 pokoje 58 m2 9 944,74 zł/m2

Mieszkanie na sprzedaż

Bydgoszcz, Fordon

2 pokoje 30 m2 10 665,55 zł/m2

DORADCA DS. RYNKU NIERUCHOMOŚCI

Proszę wprowadzić poprawne imię i nazwisko
Proszę wprowadzić poprawny numer telefonu
Proszę wprowadzić poprawny adres e-mail
Proszę zaznaczyć wymagane zgody
Rozwiąż równanie:
14 1
Niepoprawny wynik